BenAas 1.1 er den "bredere" delen av bygget som ligger tilgjengelig på sjøsiden
Denne delen av bygget ble tidligere benyttet av Dynoplast Cipax Nord som fabrikklokale.

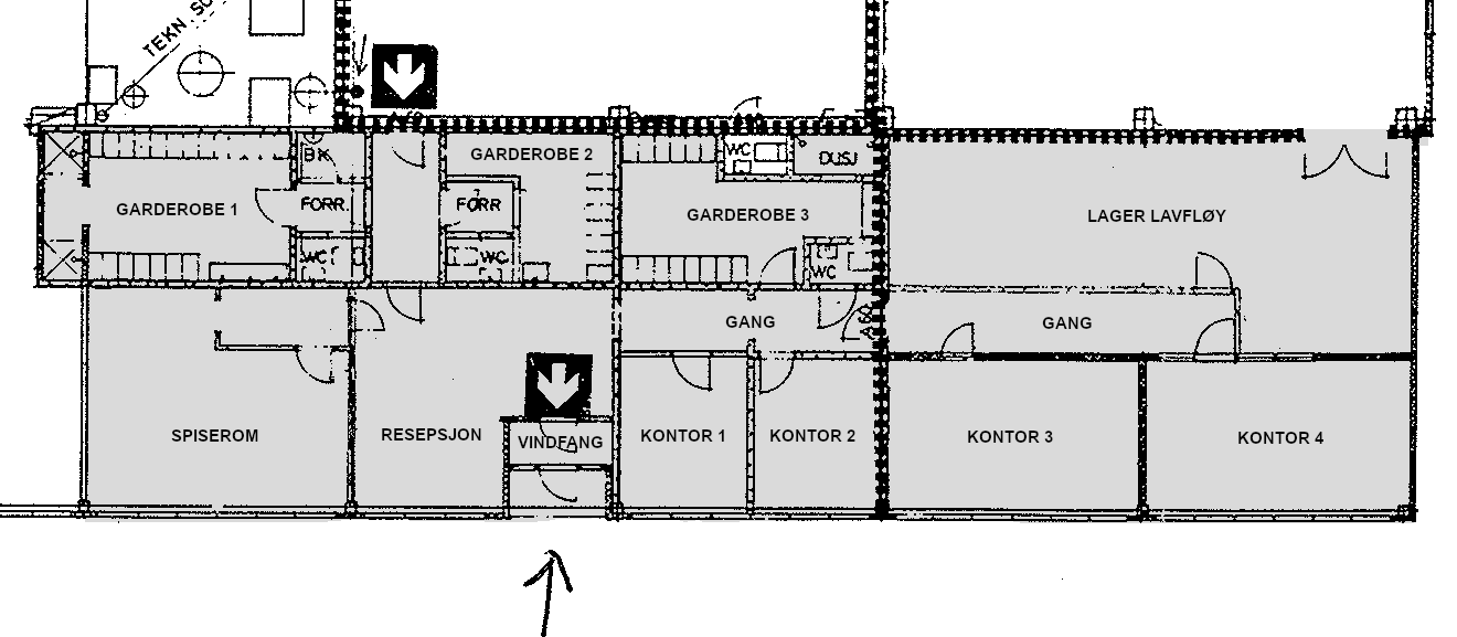
Verkstedsavdelingen er på over 1350 kvadratmeter, og den tilhørende "lavfløya" som inneholder kontorer, sanitæranlegg og et verksted er på rundt 400 kvadratmeter.
På "lavfløysiden" som vender mot sørvest er det en dør inn til kontoravdelingen, og på sjøsiden av bygget er det 1 elektrisk industriport, samt en inngangsdør inn til hallen.
BenAas 1.1 benyttes for tiden til vinterlagring av båter, biler og campingvogner, samt annen midlertidig lagring.
Garasjeavdeling og/eller kontoravdeling kan således klargjøres for ny leietaker etter behov.
På plantegningene under ser du BenAas 1.1 uthevet, og på bildet ser du hvilken del av bygget som tilhører denne utleiedelen.
Plantegninger:


